SHEV sustavi – jednostavno objašnjeno
Sustavi za odvod dima i topline (SHEV) važan su dio preventivne zaštite od požara. Njihova je svrha zaštita ljudskih života…

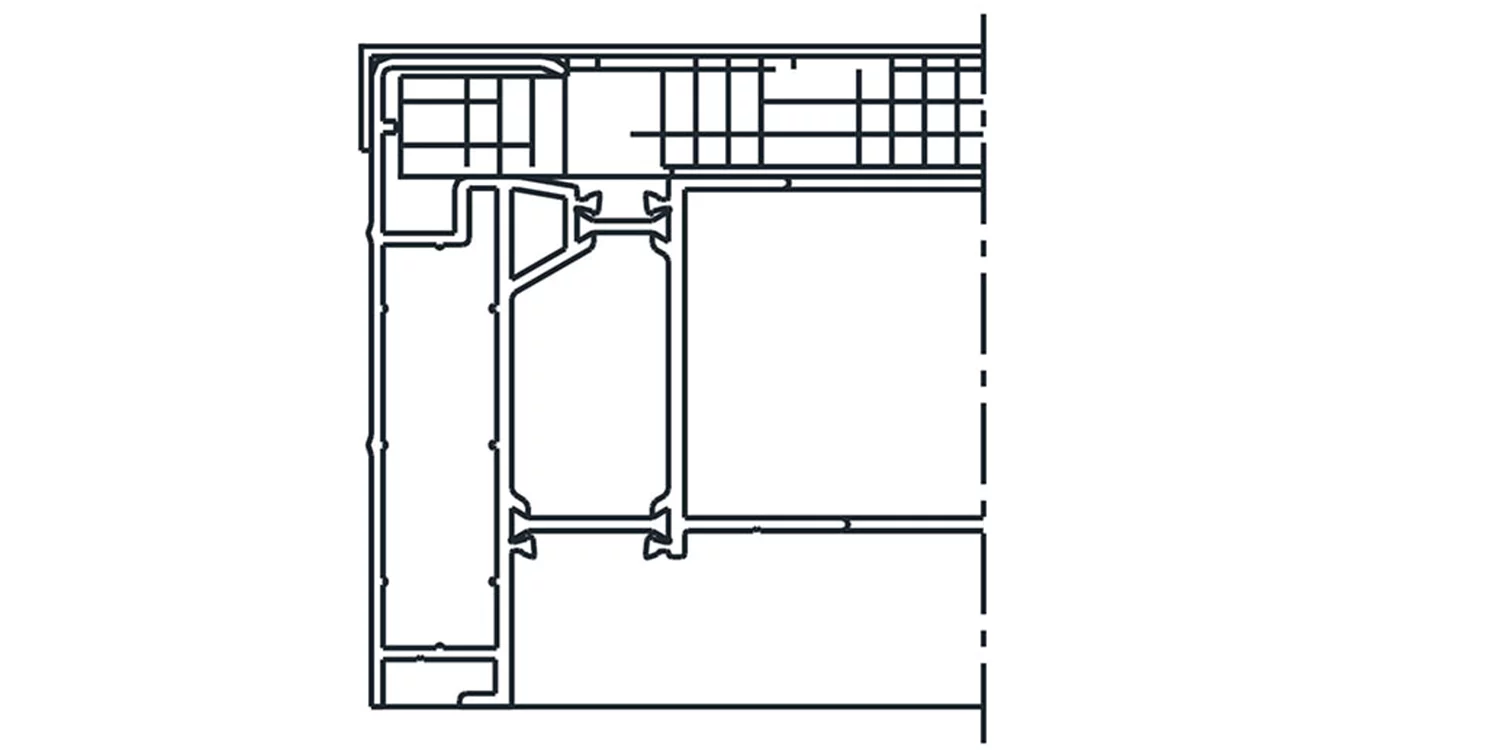
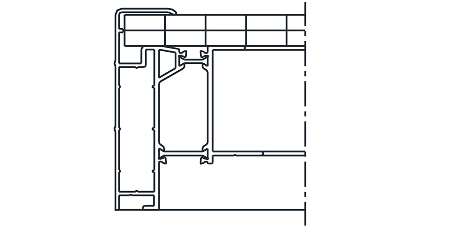
Dvoklapni sustav roda Phoenix prirodni je ventilacijski uređaj s ventilacijskim položajem od 90°, koji je ujedno odobren kao prirodni sustav za odvod dima i topline. Izdržljivost, kvaliteta i stabilnost obilježavaju Phoenix dvoklapni sustav te ga čine klasičnim proizvodom u LAMILUX roda obitelji. Zahvaljujući maloj težini, omogućena je jednostavna ugradnja u sve krovne i zidne konstrukcije, uključujući nagibe do 90°. Sustav je konstruiran da izdrži ekstremne vremenske uvjete, a njegovi su panti za svakodnevnu ventilaciju bez potrebe za održavanjem.
• CE označena kvaliteta i certificirano u skladu s EN 12101-2
• Testovi izdržljivosti s 10.000 ciklusa otvaranja/zatvaranja potvrđuju stabilnost i funkcionalnost konstrukcije i korištenih visokokvalitetnih materijala
• Strukturna stabilnost pri opterećenju vjetrom WL 3000
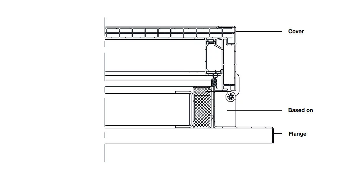
• Toplinski odvojeni poklopci
• Toplinski prekinuti aluminijski okviri za ujednačenu toplinsku izolaciju bez toplinskih mostova
• Mogućnost odabira toplinski odvojenih aluminijskih legura (AlMgSi05) ili toplinski odvojenih polikarbonatnih poklopaca nagnutih 6° u vodoravnom položaju
• Isporučuje se kao potpuno sastavljena jedinica, lagane konstrukcije, radi jednostavne ugradnje na gradilištu
• Prirodna, energetski učinkovita dnevna svjetlost pri odabiru polikarbonatnih poklopaca
• Toplinski prekinuti okviri smanjuju kondenzaciju, stvaranje plijesni i bakterija, čime osiguravaju ugodniju unutarnju klimu
• Akustična zvučna izolacija: smanjenje zvuka do Rwp 33 dB
• Idealno rješenje za ravne krovne površine, uz mogućnost prilagodbe za sve vrste objekata
• Cijenjen među investitorima jer se može koristiti kao uređaj za dnevnu svjetlost (verzija s polikarbonatom) i ventilaciju
• Certificiran prema EN 12101-2 za odvod dima i topline, s učinkovitim aerodinamičkim površinskim vrijednostima

• A3 – dvostruki aluminijski poklopac (toplinski odvojen)
• Puni poklopac (neproziran)

• K3 – 25 mm prozirni polikarbonat (toplinski odvojen)
• Omogućuje ulazak prirodne dnevne svjetlosti

• 24 VDC motor, 2.0 A
• Kut otvaranja približno 90°

• Širina 160 mm s dodatnim preklopom od 50 mm
• Isporučuje se predmontirana
| Šifra proizvoda | PA3-S11-S | PA3-S12-S | PK3-S11-S | PK3-S12-S |
|---|---|---|---|---|
| Dimenzija | 1050 × 1500 mm | 1050 × 2300 mm | 1050 × 1500 mm | 1050 × 2300 mm |
| Vrsta pokrova | A3 – Aluminij | A3 – Aluminij | K3 – Polikarbonat | K3 – Polikarbonat |
| Aa | 1 m² | 1.5 m² | 1 m² | 1.5 m² |
| Ageo | 1.28 m² | 2.05 m² | 1.28 m² | 2.05 m² |
LAMILUX nudi širok raspon upravljačkih rješenja kako bi se osigurala potpuna funkcionalnost sustava za odvod dima i svakodnevnu ventilaciju. Standardni LAMILUX paket upravljanja sastoji se od:
Upravljačke jedinice
Ručnog javljača požara
Detektora dima


Potpuno CE označeno i certificirano u skladu s EN 12101-2
Testirano i certificirano do Re 1000 (VdS odobrenje minimalno Re 50)
Akustična zvučna izolacija: smanjenje buke do Rwp 33 dB
Otpornost na toplinu: B 300-E (300 °C / klasifikacija otpornosti na požar E)
Opterećenje vjetrom: do WL 3000*
(VdS odobrenje minimalno 1500 N/m²)
Kontrola kvalitete izrade komponenti:
• Sustav upravljanja energijom prema EN ISO 50001:2011
• Sustav upravljanja kvalitetom prema EN ISO 9001:2015
Sustavi za odvod dima i topline (SHEV) važan su dio preventivne zaštite od požara. Njihova je svrha zaštita ljudskih života…
Koeficijent prolaska topline, odnosno U-vrijednost građevinskog elementa predstavlja praktičnu mjeru njegove toplinske propusnosti, temeljenu na provođenju topline.
Upotrebljivost, dizajn te pouzdana protupožarna i protuprovalna zaštita. Koje kriterije mora ispunjavati sustav dnevnog svjetla kako bi bio prikladan za…